בריידמן
אגמון
אדריכלים
עמוד הבית
פרויקטים
סטודיו
אודות
נורית אגמון
יואל בריידמן
צוות
כתבות ולינקים
סקיצות
צור קשר
עברית
english
הדקל
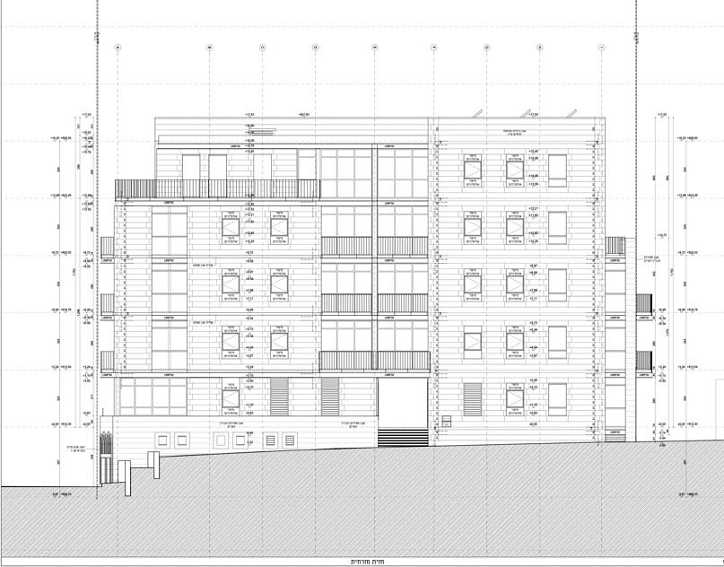
| מגורים, שימור
מיקום
ירושלים, הדקל
שנה
2020
סטטוס
הושלם
היקף
2,137 מ"ר
מבנה לשימור ותוספת 16 יחידות דיור.
הפרויקט הבא
הפרויקט הקודם
הצג גלרייה